

販売現地♪建物完成しました🌟

最新写真UP致しました😎
周辺環境充実🌟近くに川が流れており穏やかな環境です♪
前面道路の車通りは少ないですが、車のすれ違いも可能!
最寄りの「二宮」駅はバスで9分🚌最寄りのバス停「おおいそ学園入口」から物件まで徒歩5分と好立地✨
自然環境に包まれながらも便利な周辺環境のこちらの物件、ぜひお見逃しなく!!

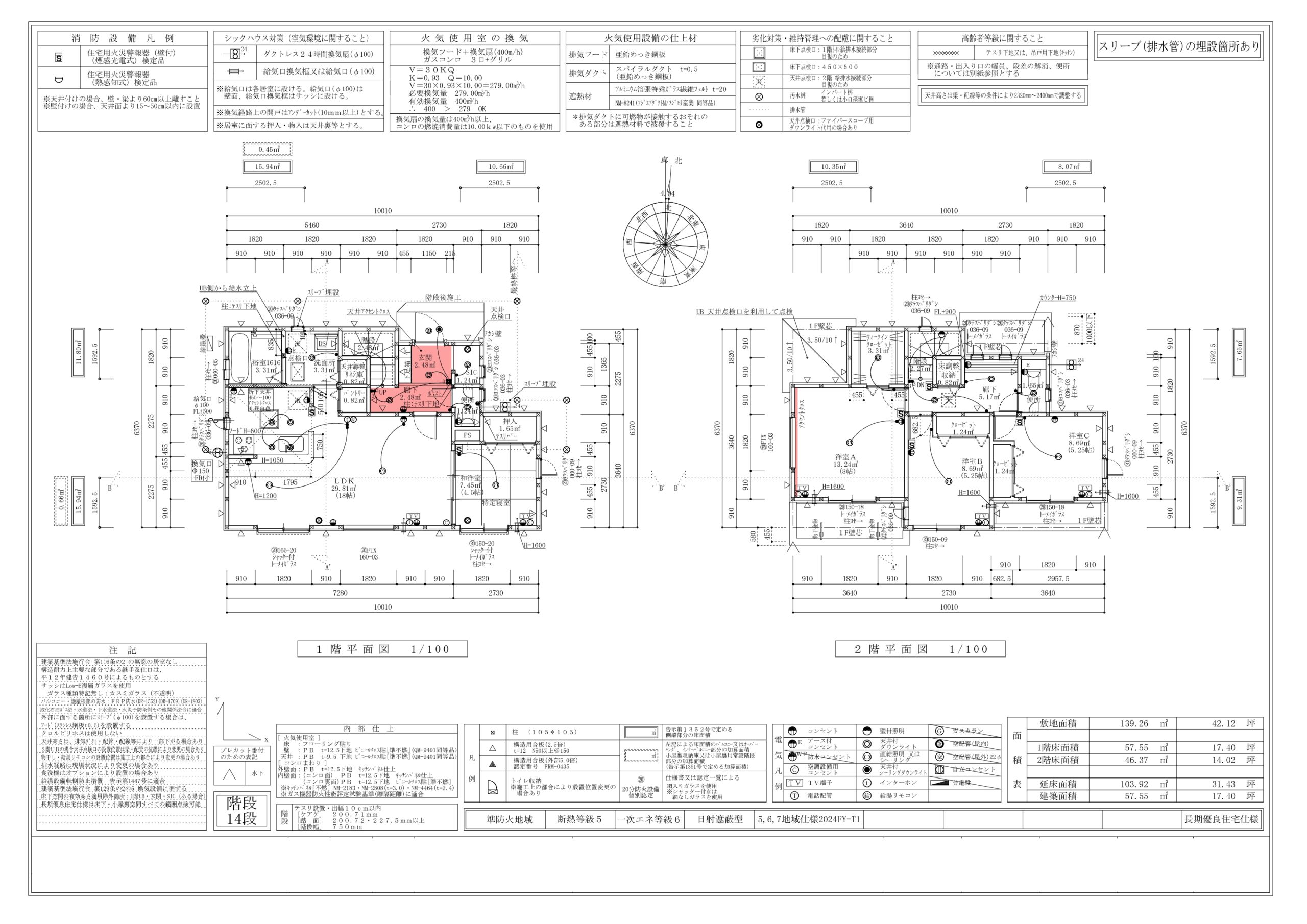
| 物件種別 | 新築 戸建て |
| 物件名称 | 大磯町生沢 1棟 |
| 価格 | 2,980万円(税込み) |
| 所在 | 中郡大磯町生沢252-8 |
| 交通 | JR東海道線 「二宮」駅バス9分 「おおいそ学園入口」停歩5分 |
| 土地面積 | 141.39㎡ |
| 構造 | 木造 |
| 階建て | 2階建て |
| 築年月 | 2025年9月 完成予定 |
| 土地権利 | 所有権 |
| 用途地域 | 第一種住居地域 |
| 建ぺい率 | 60% |
| 容積率 | 200% |
| その他 法令上の制限 |
準防火地域、第二種高度地区 |
| 現状 | 建築前 |
| 引渡条件 | 相談 |
| 引渡日 | 相談 |
| 学校区・ 中学校区 |
国府小学校・国府中学校 |
| 設備 | 東京電力・個別プロパンガス・公営水道・公共下水 |
| 備考 | 取引形態:媒介 建築確認番号:第HPA-25-06216-1号(令和7年6月25日) 都市計画:市街化区域 接道状況:北4.02m 公道 私道負担・持ち分:有 |