

外観♪
【 ライオンズマンション茅ヶ崎グランコースト 210号室 】

こちらの物件は、温かい雰囲気の内装リノベーションにより新築のような空間に大変身🌟キッチン周りはデザインが変わり特別のような空間になっております✨
淡いグレーを基調としたキッチンは、カウンターキッチンによりLDKの様子を見ることができます👀間接照明がオシャレで、料理するにもワクワクしそうです🍳

ワイドな洗面化粧台は収納万能!照明がオシャレ🌟忙しい朝でもゆとりを持てそうです♪大小さまざまな収納がついているので便利です✨

サーフボード置き場付き!海岸まで徒歩5分の湘南ライフを楽しむ事ができるコチラの物件、ぜひお見逃しなく!!
~リフォーム内容~ 2025年10月施工済み
クロス張替/フローリング張替/フロアタイル張替/キッチン新規交換/ユニットバス新規交換/建具新規交換/洗面化粧台新規交換/トイレ新規交換/照明器具新規交換/ダウンライト新規設置/下足入れ新規交換/ハウスクリーニング/専有部内配管更新/東レ浄水器設置/UB山崎実業[tower]設置/大型フロントオープン型食洗器設置/全室エアコン設置

| 価格 | 4,590万円 |
| 所在 | 茅ヶ崎市緑が浜 |
| 交通 | JR東海道線 「辻堂」駅徒歩25分 「辻堂」駅バス12分 「茅ヶ崎学園入口」停歩3分 |
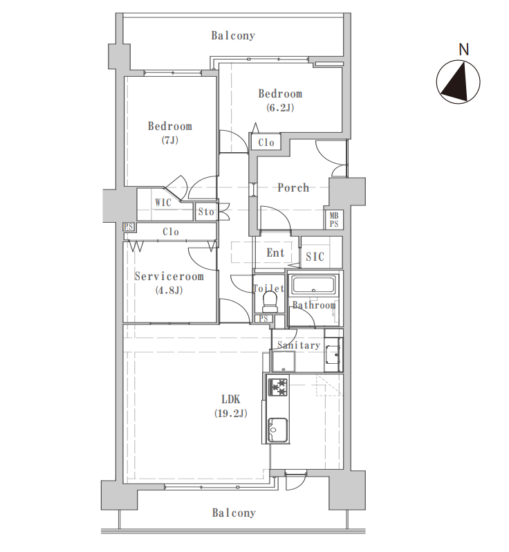
| 間取り | 3LDK+SIC+WIC |
| 構造 | 鉄筋コンクリート造・総戸数82戸 |
| リフォームの有無 | 有 2025年10月施工済み |
| 階建て | 8階建て2階部分 |
| 築年月 | 2002年7月 |
| 土地権利 | 所有権 |
| 用途地域 | 準住居地域 |
| 現状 | 空室 |
| 引渡日 | 相談 |
| 学校区・ 中学校区 |
汐見台小学校・松浪中学校 |
| 設備 | 都市ガス・公営水道・公共下水 |
| 駐車スペース | 有 月額8,000円~15,000円 |
| 駐輪場・バイク置場 | 駐輪場:有 月額1,000円 バイク:有 月額1,000円 |
| 管理方法 | 日勤 |
| 管理方式 | 全部委託管理 |
| 管理費 | 月額31,730円 |
| 修繕積立金 | 月額11,000円 |
| ペット飼育 | 飼育可 犬または猫(成長後も体高が30cm程度のものとし1住居につき、計1匹を限度とする) |
| 備考 | 取引形態:媒介 バルコニー面積:21.43㎡ サーフボード置き場:月額500円 |